2016
08.05
08.05

農と住の境界線。高田貸家
農と住の境界線に建つ住宅街角地の貸家が出ました。
場所は糸島市高田。お隣が周船寺。福岡市西区との市境です。
あぜ道が続く農道は散歩コースで歩いてる人を良く見かけます。
利便性と住環境は良好。買物・交通には困らないでしょう。
駅徒歩15分の距離・駐車場二台込、4LDKこの広さでこの価格は魅力的。
糸島市への玄関口「高田地区」から糸島移住・脱マンションを初めて見ませんか?
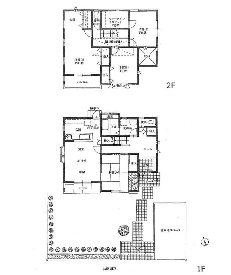
高田貸家
4LDK(105.16㎡)
P二台込み
平成3年築
オール電化・エアコン二台、カーテン、照明サービス設置
平成28年8月 外壁塗装済み。
周船寺駅 徒歩14分(1.1km)
家賃 78,000円/月
礼金二ヶ月



























